Xirdalanda satilan evler
Xirdalanda heyet evleri
Abşeron, Masazırda evler
Sumqayit heyet evi satilir
Sumqayıt bina evleri satilir


Bakı və Abşeronda
Naxçıvanda kiraye evler
Qəbələ - İsmayıllı - Şamaxı
Şəki - Qax - Zaqatala
Nabran - Quba - Qusar
Astara - Lənkəran - Lerik








Satılır 390000 Baxış sayı: 46| Tarix: 04.04.2026| Elan: 932700
Bina evi menzil / Yeni tikili
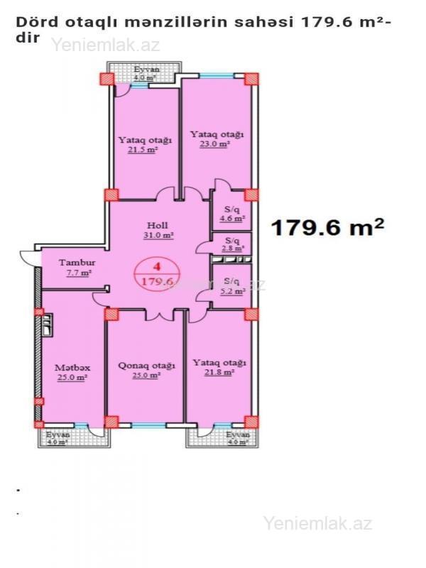
4 otaq
180 m2
16 / 12 Mərtəbə

Kupça
Təcili Satılır !!! -Kupçalı İpotekaya yararlı .. -Noyabr pr -də Premium binada .. -Qanuni 4 otaq Geniş və işıqlı mənzil ! -Mənzilin Gənclər Parkına və dənizə möhtəşəm mənzərəsi var ! -Xətai metrosuna 10 dəqiqəlik məsafədə yerləşir . -2 sürətli lift Yeraltı parking və 24 saat mühavizə xidməti mövcuddu ! -Qiymətdə endirim olacağ. Tam məlumat ücün zəng edin. Whatsapp da aktivdi. -Ofis xidmət haqqı 1 %

Qaz
Su
İşıq
Telefon
Kabel TV
Lift
Seyf Qapı
PVC pəncərə
Su çəni
Balkon
Mərkəzi istilik s
Kondisioner
Mətbəx mebeli
Əşyalı
Kombi sistemi

Ünvan

Bakı
Xətai rayonu
Ağ şəhər
metro. Həzi Aslanov
Noyabr Pr

Əlaqə

Kamran bəy
Vasitəçi / Rieltor

Qeyd


  Faydalı linklər
Nabranda kiraye evXirdalanda heyet evleri kreditle..Masazirda heyet evleri kiraye..Sarayda kreditle bina evleri..Saray torpaq satilir..Sarayda kirayə həyət evləri..Novxanida bag evileri satilir..Novxanida villa kiraye..Novxani gunluk villa..Bakixanovda torpaq saheleri satilir..Bakixanovda evler satilir..Sumqayitda evler 2 otaqli..Merdekanda ucuz heyet evleri..Merdekanda gunluk kiraye evler..Merdekanda heyet evleri kiraye..Zabratda bina evleri satilir..Zabratda kreditle satilan heyet evleri..Gencede yeni binalarin qiymeti..Gencede mehle evlerin qiymeti..Gencede kreditle satilan evler..Gencede satilan torpaq saheleri..Bakıda günlük kiraye evler..Vəndamda kirayə evlər..Xirdalanda kiraye heyet evleri..Yasamalda kiraye evler 200-300..Sumqayitda kreditle evler..Sumqayitda kiraye evler..Bakida evlerin qiymeti..Bakida 2 otaqli kiraye evler..Masazirda satıilan heyet evleri..Masazirda bina evleri..Ehmedlide ipoteka ile satilan evler..Nerimanovda evlerin satisi..Nerimanovda kreditle satilan evler..